Structural Remediation, Strengthening & Repair Qld
We provide RPEQ-certified structural remediation for commercial and industrial concrete, steel and timber structures. Before recommending any repair, we use specialised instrumentation to quantify the actual severity of the issue.
A crack in a wall, settlement of a foundation, rust in steel, or rot in timber does not automatically mean a full replacement is the only available option.
A crack in a wall, settlement of a foundation, rust in steel, or rot in timber does not automatically mean a full replacement is the only available option.
Concrete Repair of Rail Bridge
As an example, during routine inspection of a rail bridge, an area of poor quality concrete was noted in a part of a bridge pier. We provided a suitable temporary repair method using epoxy injection and epoxy mortars to ensure strong adhesion.
The repair was then verified for load sharing using mechanical strain gauges. This is important to perform, as some epoxy products are far harder and stronger then concrete which leads to structures trying to flex other parts.
The repair lasted 2 years without issue until the pier was replaced.
The repair was then verified for load sharing using mechanical strain gauges. This is important to perform, as some epoxy products are far harder and stronger then concrete which leads to structures trying to flex other parts.
The repair lasted 2 years without issue until the pier was replaced.
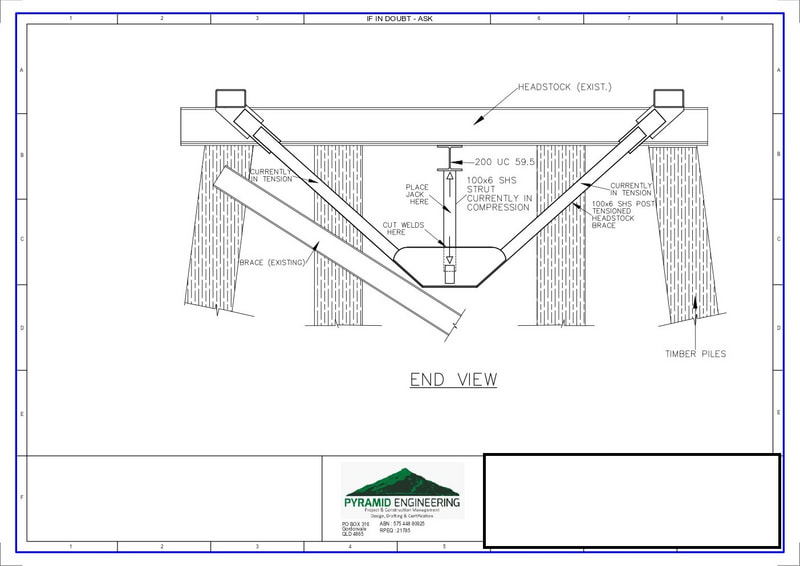
Repair of Timber Rail Bridge
A timber bridge identified for replacement required strengthening to ensure its safety and reliability for its remaining 12 months of service life.
Through modelling and strain measurement, the two central piles were found to be taking 80% of the load.
Pyramid Engineering devised a lightweight post-tensioned steel frame to redistribute the pile loading more evenly across each pile group, and used bondable strain gauges to allow systematic increase of post tensioning load until the best load share could be established.
Pyramid Engineering also provided a decommissioning plan for the framework to ensure safe demolition of the bridge.
Through modelling and strain measurement, the two central piles were found to be taking 80% of the load.
Pyramid Engineering devised a lightweight post-tensioned steel frame to redistribute the pile loading more evenly across each pile group, and used bondable strain gauges to allow systematic increase of post tensioning load until the best load share could be established.
Pyramid Engineering also provided a decommissioning plan for the framework to ensure safe demolition of the bridge.
Foundation Repair, Underpinning & Subsidence
Building movement and subsidence can have many causes — reactive soils, inadequate footings, changes in groundwater, tree root intrusion, or construction nearby. Before any repair is proposed it is important to understand what is actually happening.
We monitor crack growth and structural movement to determine whether movement is active or historic, and how fast it is progressing. This tells us whether the structure needs immediate intervention or ongoing monitoring.
Where underpinning or foundation repair is required, we design a solution specific to the structure and site conditions — whether that is screw piles, grout injection, resin injection, or a combination of methods.
All repair plans are RPEQ-certified and include documentation suitable for building certifiers, insurers and council.
We also provide decommissioning plans, demolition plans and make-safe plans where a structure cannot be economically repaired.
We monitor crack growth and structural movement to determine whether movement is active or historic, and how fast it is progressing. This tells us whether the structure needs immediate intervention or ongoing monitoring.
Where underpinning or foundation repair is required, we design a solution specific to the structure and site conditions — whether that is screw piles, grout injection, resin injection, or a combination of methods.
All repair plans are RPEQ-certified and include documentation suitable for building certifiers, insurers and council.
We also provide decommissioning plans, demolition plans and make-safe plans where a structure cannot be economically repaired.
Wall Crack Repair, Resin Injection & Building Rectification Works
Cracks in walls are common. Some are cosmetic. Others mean something is moving.
We use crack monitors and sensors to track whether a crack is growing and how fast, so we understand the cause before designing a fix. We can see into your wall using tools such as concrete scanners to give us a picture of what's going on inside, and let you know what's worth worrying about and how to fix it. We can specify repair methods for repair of cracking in blockwork and rendering.
We use crack monitors and sensors to track whether a crack is growing and how fast, so we understand the cause before designing a fix. We can see into your wall using tools such as concrete scanners to give us a picture of what's going on inside, and let you know what's worth worrying about and how to fix it. We can specify repair methods for repair of cracking in blockwork and rendering.








